
Alkuperäinen tilamuutospohja, johon on merkitty pisteviivalla poistettavat seinät sekä vanha keittiö, rakennettavat seinät sekä muut purkutyöt.

Kiinto- ja irtokalustepohja sekä valaisimien paikat.
Keittiö








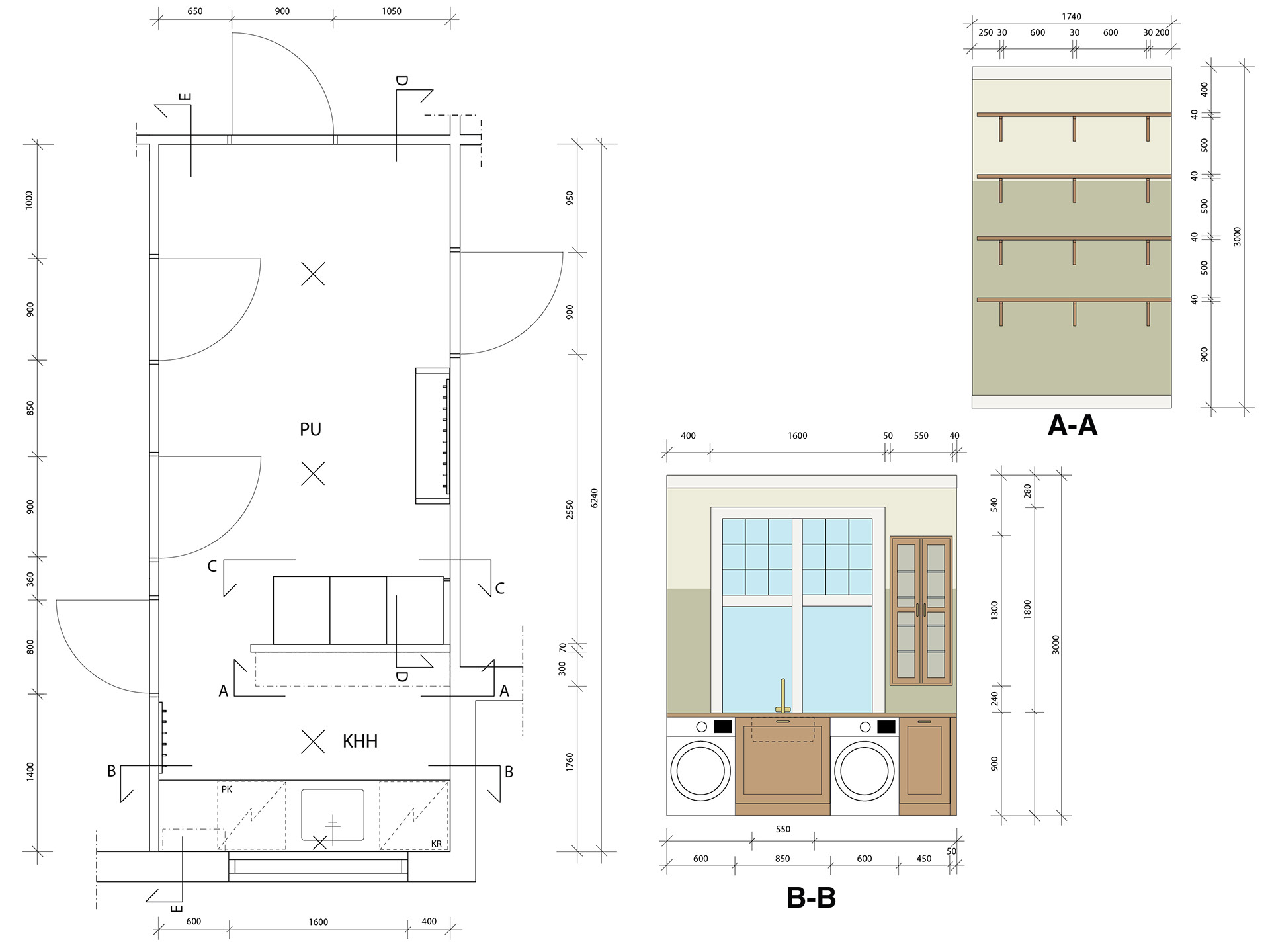
WC, KHH ja KH








Lastenhuone






Makuuhuone


Olohuone


Ruokailusali


Eteinen

